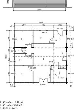
ATHENA : chalet habitable de plain pied, 100M2
Surface habitable : 87.00m2
Surface totale : 100.00m2
Spécificités :
- 3 chambres
- 1 Salle de bain
- 1 WC
- Sans combles
Description du modèle Athéna
Un chalet de plain pied avec 3 chambres:
Ce chalet en bois est idéal pour une famille avec deux enfants, il dispose de 100m2 de plain pied et est pourvu de trois chambres. De plus, le modèle Athéna possède un grand séjour avec cuisine ouverte de 41m2.
Un chalet super isolé:
Une isolation des murs (140 ou 200mm) et du toit (300 ou 400mm)est nécessaire pour respecter les normes RT2020.En conséquence, votre maison sera facile à chauffer et restera fraiche en été.
De plus, les menuiseries sont de haute qualité. Initialement proposées en bois bois, nos portes et fenêtres peuvent être en PVC ou en aluminium. Les volets bois peuvent être remplacés par des volets roulants aluminium isolés et motorisés avec télé commandes.
Notre force : Le sur mesure !
Les plans sont modifiables aussi bien dans leurs aménagements des pièces et des ouvertures que dans la pente de toit ou les dimensions du chalet. Aménagez et disposez les pièces à votre envie!
Notre kit de chalet inclut dans son prix un plancher bois épicéas de 28mm.Nous le déduirons du prix si le client souhaite y poser un carrelage ou un parquet flottant.
Les menuiseries sont proposées en bois, en PVC ou en aluminium et les volets roulants sont possibles.
Enfin, nous pouvons mettre d’autres isolants comme de la laine de bois, de chanvres ou autres. La couverture est possible en tôles tuiles, tuiles ou ardoises.
Notre équipe de montage est expérimentée :
JFR Nature et Bois et ses 27 ans d’expérience propose à ses clients le montage par son équipe. Nos ouvriers ont une grande expérience du montage de nos chalets et sauront vous réaliser un travail au top!
Chalet habitable tout compris
Un chalet clés en main : En plus du montage, JFR Nature et Bois propose également l’électricité, la plomberie et les sanitaires à votre convenance. Seuls le terrassement, la dalle ou l’assainissement sont à prévoir en amont.
Caractéristiques techniques
Contactez-nous
Remplissez simplement une demande dans le formulaire de contact et nous vous recontacterons rapidement.




